OBECNÍ DŮM A BERGEROVO NÁMĚSTÍ STRÁŽ NAD NISOU
Autor: Michaela Jiroušková
Materiály v PDF:
Stráž nad Nisou byla dříve součástí Liberce, ale roku 1990 se z ní stala samostatná obec. Stráž se začala rozvíjet teprve ve 2. polovině 18. sto-letí, poté co byl odkoupen panský dvůr a jeho budovy byly upraveny na textilní továrnu první tohoto druhu na Liberecku. Dnes zde žije přibližně 2370 obyvatel. Náměstí je obehnáno silnicí a již je ze dvou stran odděleno budovami. Nová budova obecního úřadu je umístěna na východ, kdy jižní strana náměstí je otevřena směrem na Ještěd. Úřad se může otevřít z 3 stran do náměstí a nabízí se zde propojení s exteriérem. Severní část náměstí je ohraničená z 3 stran, v této nejklidnější části by mohli expandovat podniky do exteriéru (restaurace/hospoda). Od jižní hranice náměstí po severní je zde výškový rozdíl 3-4 metry. Terén se od severu svažuje, proto by zde mohly vzniknout vyvýšené plochy – podia či terasy.
Silnice okolo náměstí, kde se bude pohybovat více lidí, je materiálově odlišená. Místo asfaltu by zde byly dlažební kostky, kvůli kterým by řidiči museli jet pomaleji. Do náměstí může zasáhnout a vjet pouze zásobování či hasiči nebo sanitky. Vznikli zde 2 větší parkovací plochy, na severu a na jihu, obě mají kapacitu 24 stání. Dále je parkování u hřiště a pár míst podél obecního domu.
Autobusová zastávka zůstává na stejném místě, má zde výhodnější polohu. Nejvýraznějším prvek budovy je její plášť, který svým vzhledem připomíná tkaninu, odkazuje tak na textilní průmysl, díky kterému se Stráž rozvíjela. Právě na místě, kde je nová stavba umístěna, byla dříve textilní továrna. Plášť má v určitých místech řidší či hustší vzor, podle potřeby osvětlení interiéru.
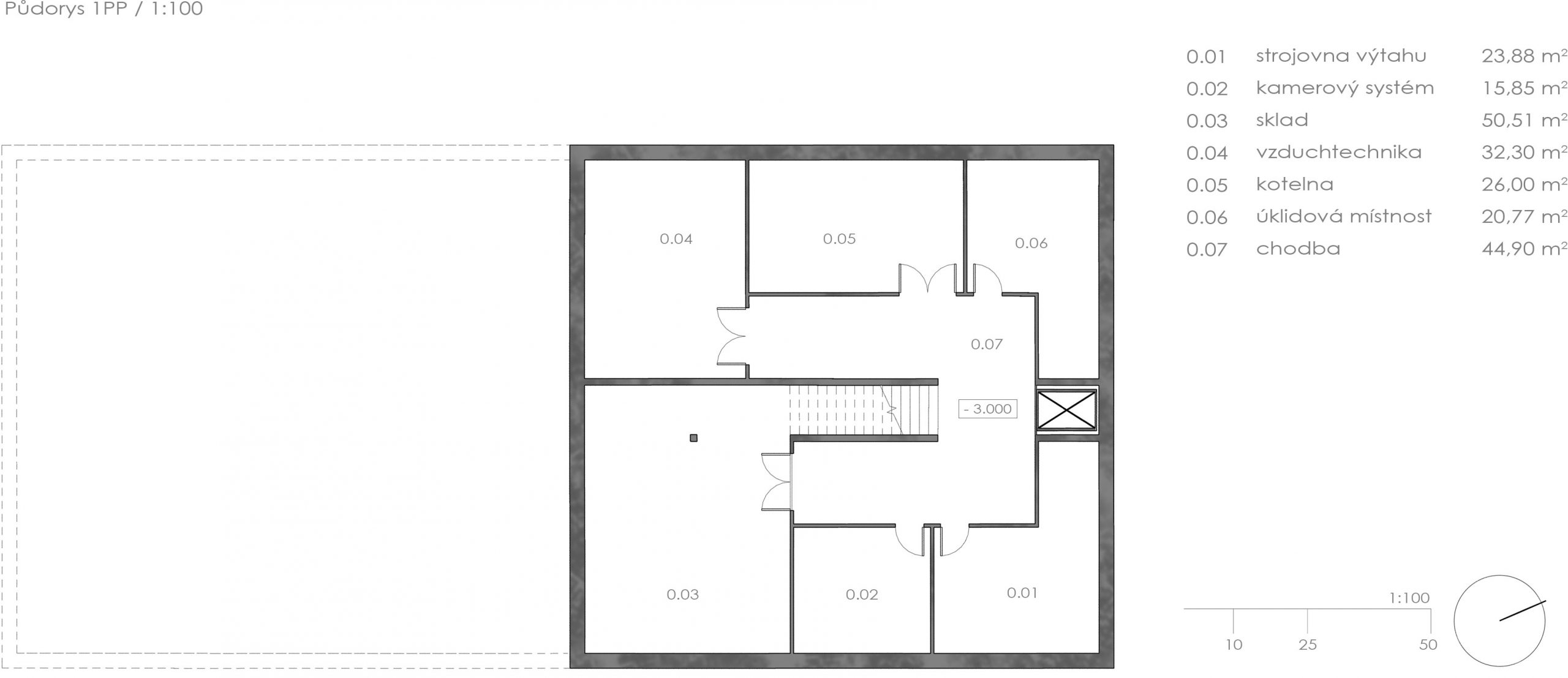
Budova má 3 nadzemní a 1 podzemní podlaží.
- -1.PP je technické zázemí.
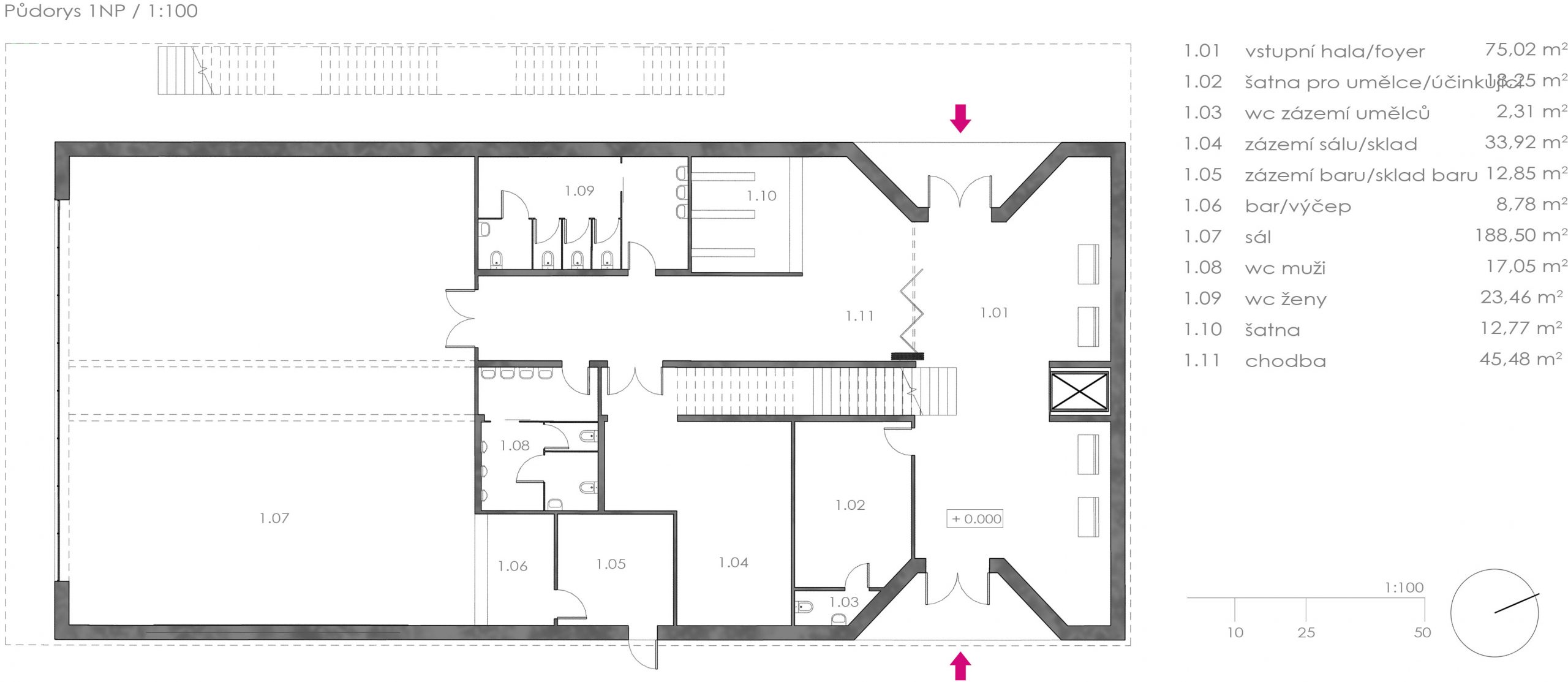
- 1.NP – zde je umístěna vstupní hala se sálem.
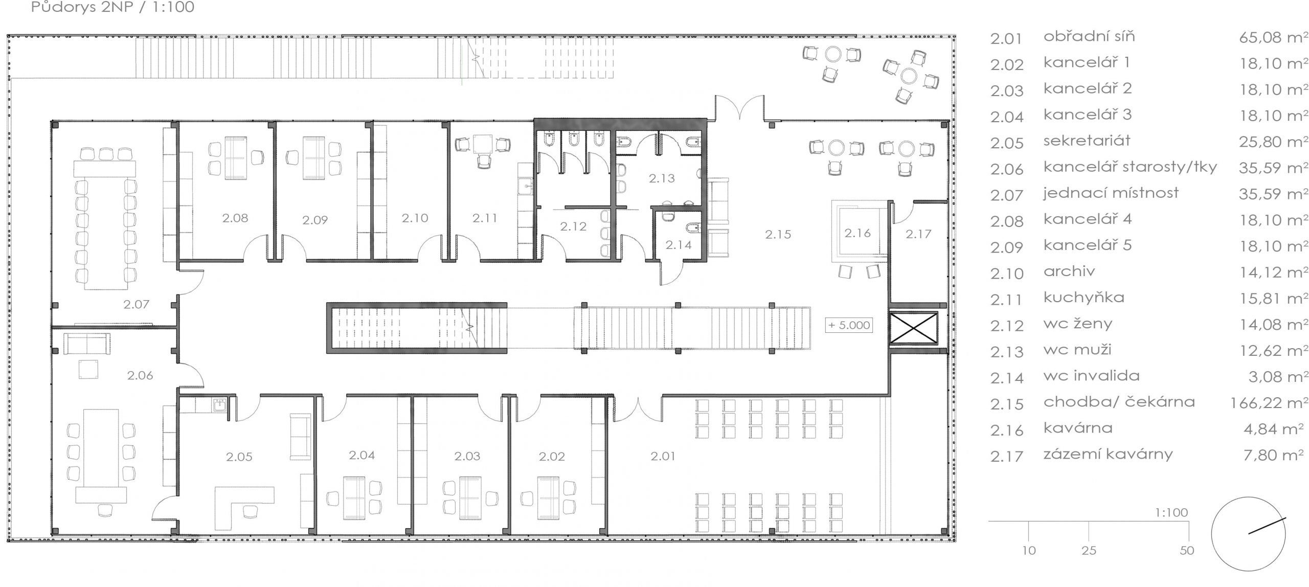
- 2NP je vyhraněno pro městský úřad s obřadní síní, která prochází dvěma patry.
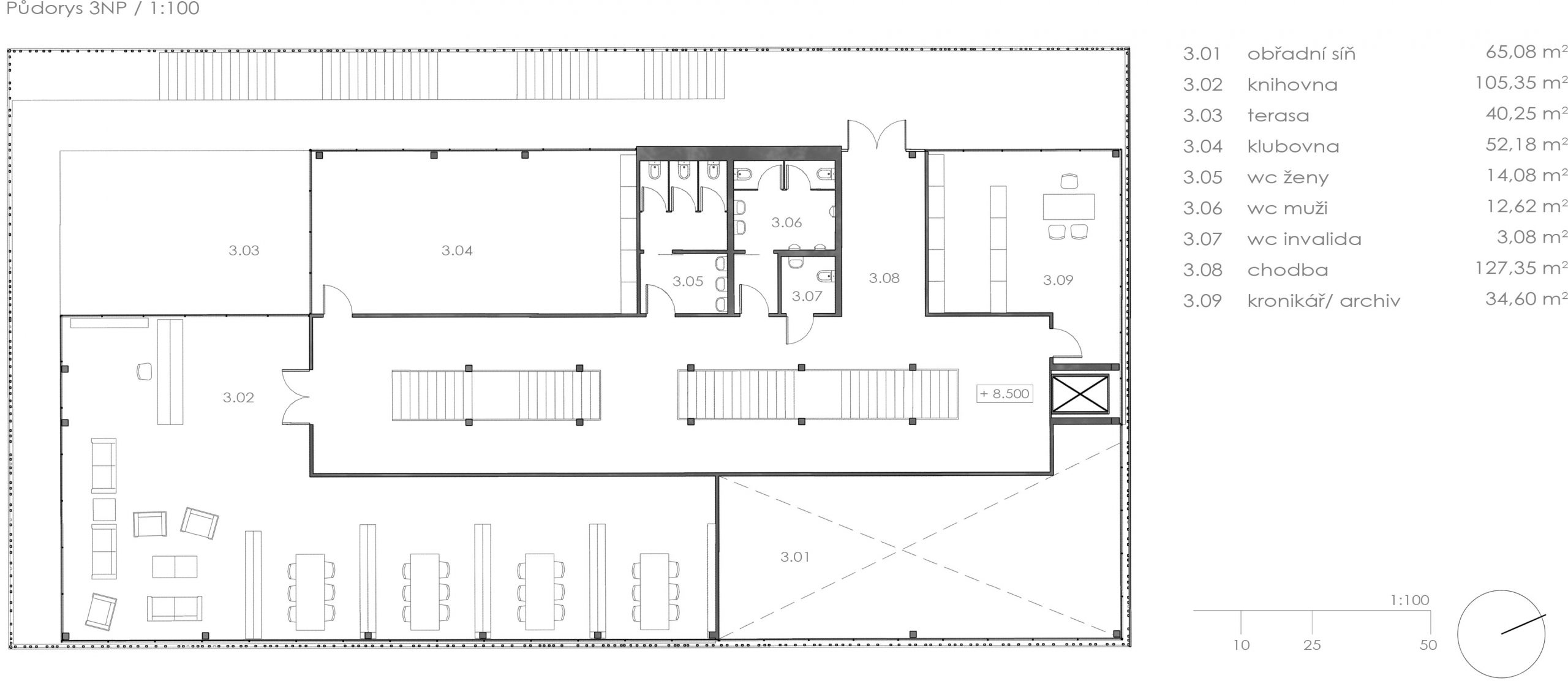
- 3NP – zde je umístěna knihovna s klubovnou, doplněny o venkovní terasu směřující na Ještěd.
Interiéru budovy dominuje dlouhé kaskádovité schodiště, které se táhne přes všechna 3 podlaží. Ve střeše je umístěn dlouhý světlík, který osvětluje celé schodiště. Stejně schodiště se nachází i v exteriéru. Kavárna se v letních měsících může otevřít do exteriéru. A může se do ní vcházet i z vnějšího schodiště. V 1 NP je využit stěnový nosný systém, zatímco ve vyšších podlažích již sloupový nosný systém. Předsazený plášť, jehož vzhled vychází z proplétajících se vláken textilie, je z bílých hliníkových panelů. Fasáda 1 NP je povrchově upravena aby vypadala jako pohledový beton. Na terasu se použila dřevěná prkna. Zeď oddělující terasu je z betonu, ale z jedné strany – směřující do sálu je porostlá zelení, zatímco z druhé strany slouží jako „informativní“ zeď, s vyrytou mapou Stráže či dalšími reliéfy o její historii. V interiéru je hlavně využito bukové dřevo, betonová stěrka, bílá omítka a sklo. Dnes náměstí slouží spíše jako parčík, je zde hodně zeleně, ale není zde prostor pro pořádání akcí. Proto v návrhu převládá zpevněná plocha, která je doplněna zelení.
Plocha náměstí je materiálově rozdělena na 3 části, nejbližší okolí budovy je z litého betonu a povrch 1 NP má také vzhled betonu, tudíž to vypadá, že náměstí nenásilně přechází v budovu obecního domu. Největší plochu pokrývají velké betonové dlaždice (1×1 m), je jimi pokryta i vyvýšená část, která při pořádání akcí může sloužit jako podium. Dále jsou zde použity žulové kostky v Části, kde se bude pohybovat zásobování. Ve střední části je umístěna alej platanů doplněna lavičkami, v této středové části vznikne v letních měsících příjemné prostředí, protože je chráněno okolními budovami a navíc je tato část doplněna o vodní prvek, který prostupuje dlaždicemi a výškově nevyčnívá.





















1 Trackback / Pingback
Komentáře nejsou povoleny.