Nový obecní úřad a společenský sálem a revitalizace náměstí ve Stráži nad Nisou
Autor: Kajetán Všetečka
Materiály v PDF:
IDEA
Hlavním momentem řešeného území, podle kterého lze rozvíjet další myšlenky a vztahy, je severojižní osa podél náměstí. Počínaje prostorem před kostelem, samotným náměstím, mateřskou a základní školu až po železniční stanici, jako branou do Stráže nad Nisou. Celková síla je zvýrazněna průhledem na nejvýraznější a nejvyšší bod v okolí, kterým je Ještěd. Podobnou paralelou je například ulice 5. května v samotném centru liberce. Na hranici terénního zlomu člověk přichází s výhledem na tento orientační bod. Orientace údolí mezi Ještědsko-kozákovském hřbetem a Jizerskými horami, tak vytváří situaci, kdy kolmo k horám vede jedna hlavní cesta (osa) a od ní se linou další již po vrstevnicích.

LEGENDA
- Obecní úřad
- Společenský sál
- Náves
- Obecní sad
- Autobusová zastávka
- Nové parkování
- Pěší zóna mezi úřadem a kostelem
- Pěší zóna před školou
- Obytná zóna
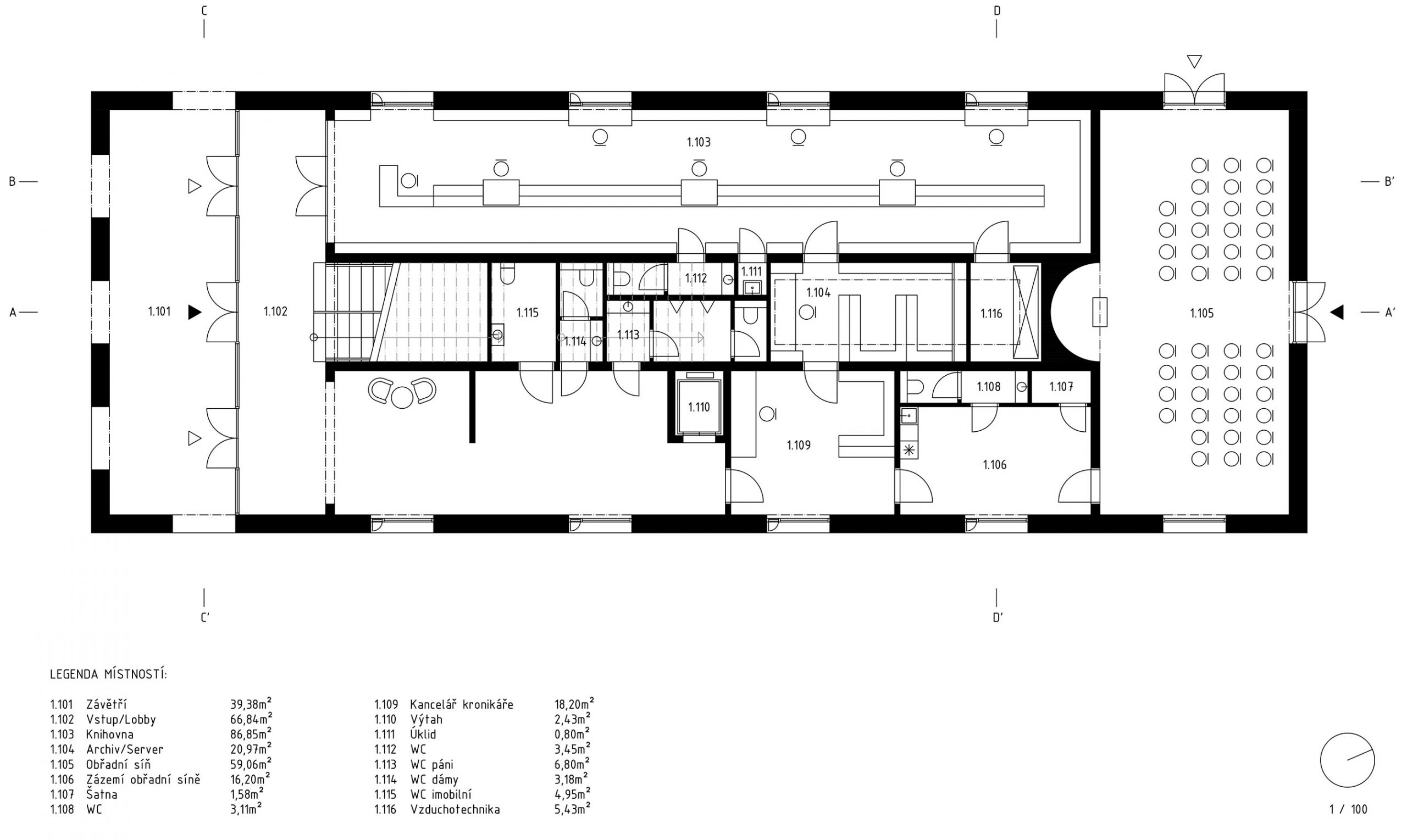
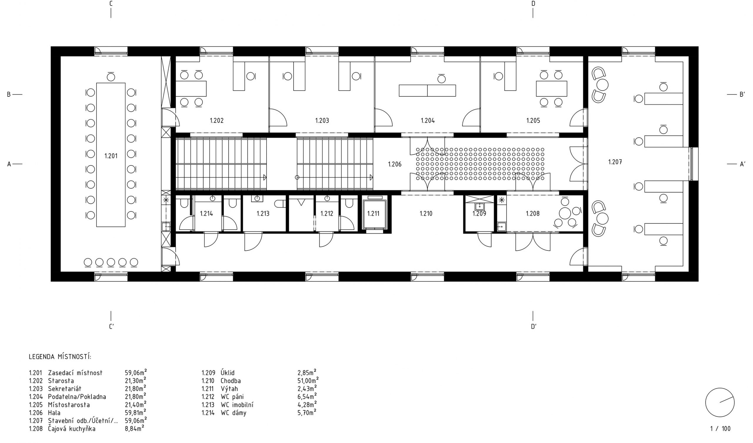
OBECNÍ ÚŘAD
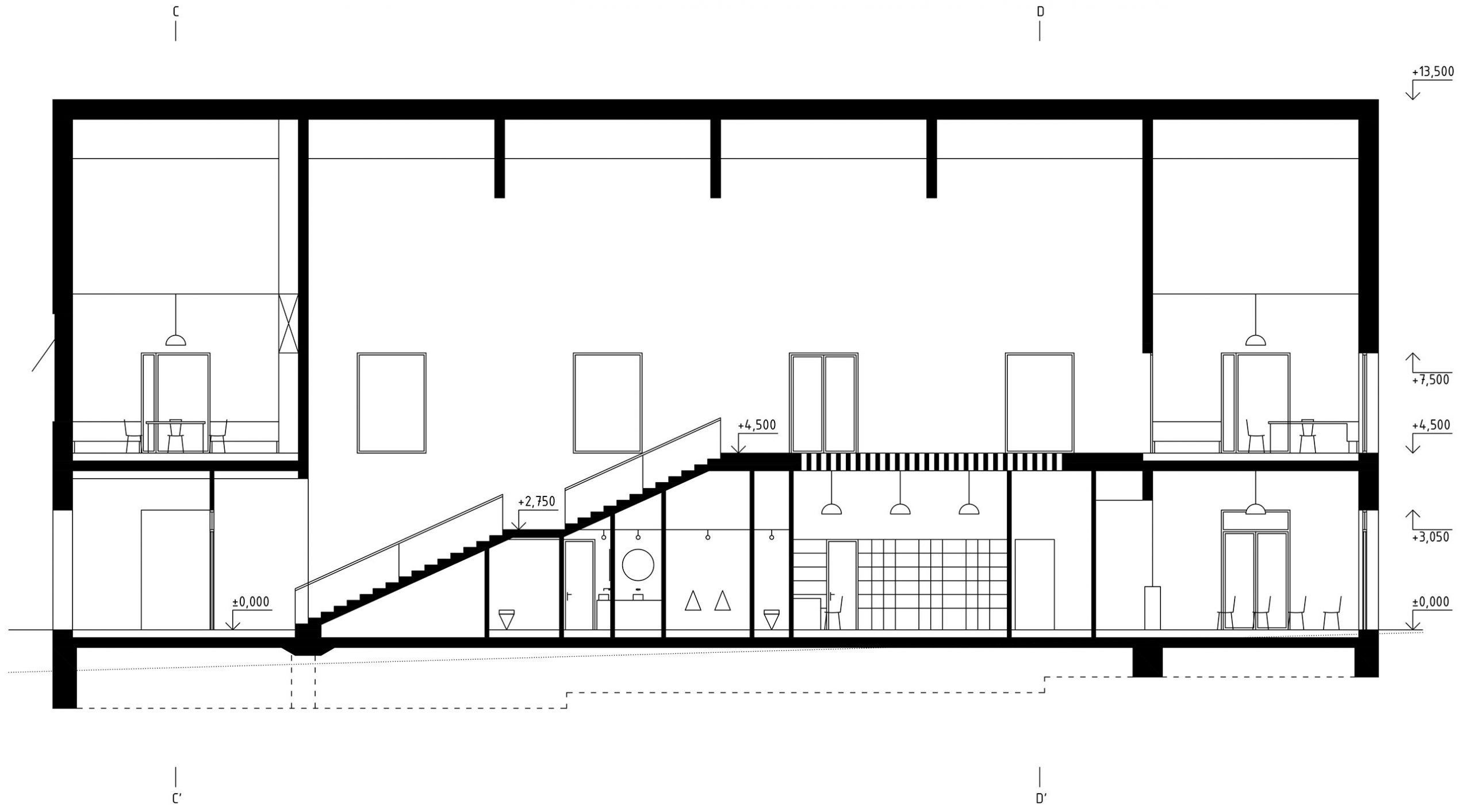
Umístění nového objektu na místo sousedící s branou panského dvora, obnoví původní ráz území, navrátí prostoru měřítko a vytvoří několik různorodých prostorů v jeho okolí. Před kostelem vzniká hlavní velkorysá plocha, která dodá místu důležitost a jasný charakter dlážděného prostranství, kde se pohybují lidé. Prostor za branou dostává stín a útulnost, umožňující soukromí například pro svatební shromáždění. Dále se za domem skrývá vlídná atmosféra malého městského sadu, který místu dodá stín, vláhu a vůni. Vytvoří tak důvod, proč zde na pár chvil pobýt, přečíst si knihu nebo se s někým setkat. Hlavní plochou náměstí nebo spíše návsi je pak platová plocha částečně lemovaná terénními schody. Je zde zachováno několik původních stromů a prostor lze volně využívat pro trhy či slavnosti. Celé území je prohlášeno za obytnou zónu s omezenou rychlostí automobilů, předností pro pěší a sníženými chodníky s kamennou obrubou. Prostor mezi kostelem a obecním úřadem je pěší zóna se zákazem vjezdu, pouze s povolením pro průjezd autobusu. Samotný dům je lemován piedestalem tvořeným schodištěm, které vrůstá do terénu. Tím je řešen nástup do domu a výškový profil okolí. Ze severu je tak možné vstoupit přímo do obřadní síně. Z jihu vystoupáme po schodišti k průčelí objektu, kde se nachází loubí, kterým do domu vstupujeme chráněni od povětrnostních vlivů. Z loubí je přístupná lineární knihovna podél západní fasády, která má výhled do sadu. Středním traktem se dostaneme po hlavním přímém schodišti do hlavní haly, která vytváří velkorysý světlý prostor, který zdůrazňuje důstojnost veřejné budovy. Kolem této haly se po obvodě nachází veškeré administrativní prostory. Vše je zakončeno hřebenovým světlíkem.
SPOLEČENSKÝ SÁL
Budova společenského sálu je umístěna jihu do nejnižšího bodu náměstí a lineární formou uzavírá řešené území. Objekt je rozdělen na pět částí. Kryté závětří je součástí exteriéru a je obdobou podloubí u obecního úřadu. Druhou částí je foyer se zázemím. Vybaven je vestavěnou mobilní regálovou šatnou, kterou lze v závislosti na sezoně využívat dle potřebné kapacity. Součástí je i bar, který lze rovněž kompletně uschovat do vestavěné linky. Nad foyer je možnost využít zvýšenou kapacitu společenské místnosti. Z této místnosti je možnost využití balkonu nad společenským sálem. Do sálu lze vstoupit z foyer i z obytné zóny před severní fasádou. Sál je podélný s kapacitou 150 osob. Podium je dřevěná konstrukce z lakovaného dřeva. Nad ním je umístěno plátno na promítání. Zázemí sálu je přístupné ze sálu a obsahuje šatnu s toaletami a sprchou. Nad ním je možné využít rozšířený prostor klubovny pro účinkující. Zásobování je řešeno krytým vjezdem v páté části objektu. Pomocí nůžkové plošiny je tak možné jakékoliv vybavení nastěhovat do úrovně podia.












1 Trackback / Pingback
Komentáře nejsou povoleny.